7 Redbank Grove, Windsor Gardens SA
3 bed
2 bath
1 garages
597sqm
Modern Elegance Defined
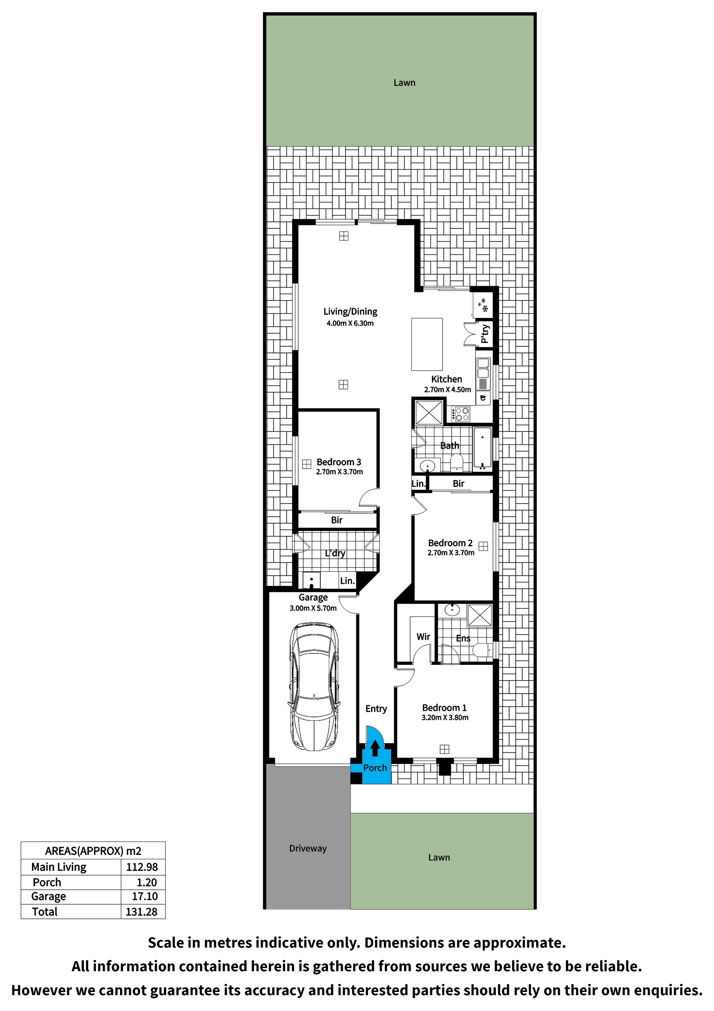
Welcome to 7 Redbank Grove, Windsor Gardens, a well-presented modern home offering comfort, functionality, and easy living in a quiet residential setting. Thoughtfully designed to suit contemporary lifestyles, this property combines a practical floorplan with quality finishes throughout, creating a welcoming space for everyday living. The home features three generously sized bedrooms, providing privacy and comfort for all occupants. The master bedroom is complemented by a walk-in robe and a private en-suite, while the remaining two bedrooms are fitted with built-in robes and are serviced by a well-appointed central bathroom. At the heart of the home is a light-filled open-plan living and dining area, offering a relaxed and versatile space ideal for both entertaining and daily living. This area flows seamlessly into the modern kitchen, which is equipped with stainless steel appliances, a built-in pantry, and ample bench and storage space, catering to both casual meals and more elaborate cooking. Additional features include an internal laundry with discreet external access, ensuring convenience without compromising on design. Year-round comfort is assured with a reliable heating and cooling system, maintaining a pleasant indoor environment across all seasons. Outside, the professionally landscaped gardens provide a calm and low-maintenance outdoor setting, enhanced by an irrigation system to keep the greenery well maintained. Completing the home is a single garage, offering secure parking and additional storage space. Situated in a peaceful pocket of Windsor Gardens, this home presents an excellent opportunity for those seeking modern living with comfort, convenience, and a relaxed lifestyle. LEASE TERM: 12 Months AVAILABLE FROM: Now WATER CHARGES: Tenant to pay for water use and supply charge RLA 275886
Stella Zhu
Stella Zhu